
Фильтр ФГГ-200
цена от
286 800 руб.
- Исполнение – горизонтальное
- Номинальный диаметр DN – 200 мм
- Номинальное давление PN – до 10,0 МПа
- Тонкость фильтрации – 4, 8, 12, 16 или 25 мм
- Максимальная производительность – 200 м³/ч
- Материал корпуса – 09Г2С / 12Х18Н10Т / другая сталь
- Блочное исполнение – опционально
- Теплоизоляция – опционально
- Комплектация КИП, ЗРА – опционально
- Резервные фильтрующие элементы – опционально
Фильтр-грязеуловитель ФГГ-200 предназначен для очистки нефти и нефтепродуктов на участках с умеренной пропускной способностью. С номинальным диаметром DN 200 и производительностью до 200 м³/ч, он эффективно удаляет механические примеси размером от 4 мм, защищая насосное оборудование, клапаны и измерительные системы от износа. Модель востребована на небольших нефтеперекачивающих станциях (НПС), локальных трубопроводах и объектах подготовки сырья.
Примеры применения ФГГ-200
- Нефтебазы в Прокопьевске: Очистка дизельного топлива перед отгрузкой потребителям.
- Автозаправочные комплексы: Фильтрация бензина для предотвращения засоров топливных систем.
- Промышленные предприятия: Защита котельных установок, работающих на мазуте.
Особенности нефтяного фильтра ФГГ-200
- Компактные габариты позволяют устанавливать фильтр в ограниченном пространстве.
- Универсальность давления: Рабочее давление до 10 МПа делает модель пригодной для участков с высокими нагрузками.
- Быстросъемные кассеты: Замена фильтрующих элементов выполняется за 30–40 минут без остановки процесса.
- Экономичность: Снижение затрат на обслуживание насосов за счет защиты от абразивных частиц.
Технические параметры фильтра для нефти ФГГ-200
| Обозначение | Фильтр ФГГ-200 |
| Производительность, м³/ч | 200 |
| Условное давление, Pу, МПа | 1,6; 2,5; 4,0; 6,3; 8,0 или 10,0 |
| Температура нефти, ℃ | От -15 до +80 |
| Температура нефтепродуктов, ℃ | От -20 до +80 |
| Степень фильтрации, мм | 4, 8, 12, 16 или 25 |
| DN, мм | 200 |
| Dp, мм (внутренний диаметр корпуса) | 500 |
| L, мм (расстояние от фланца корпуса до кромки осевого патрубка) | 2600 |
| L1, мм (расстояние от оси бокового патрубка) | 1100 |
| H, мм (расстояние от оси ФГГ до опоры) | 950 |
| L2, мм (расстояние между опорами) | 1100 |
| L3, мм (расстояние до опоры) | 1000 |
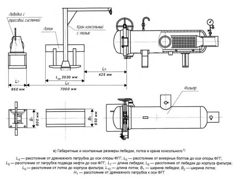
| Обозначение | Блочный фильтр ФГГ-200 |
| L7, мм (длина лебедки) | 950 |
| L8, мм (расстояние от лебедки до корпуса фильтра) | 7000 |
| L9, мм (расстояние от лотка до корпуса фильтра) | 425 |
| L10, мм (длина лотка) | 2030 |
| В2, мм (ширина лотка) | 650 |
| В1, мм (ширина лебедки) | 800 |
| L5, мм (расстояние от анкерных болтов до оси опоры ФГГ) | 0 |
| L6, мм (расстояние от патрубка подвода нефти до оси ФГГ) | 675 |
| L4, мм (расстояние от дренажного патрубка к оси опоры) | 400 |
| Н1, мм (расстояние от дренажного патрубка до оси ФГГ) | 420 |
| Радиус вылета быстроразъемного концевого затвора, мм | 950 |
| Количество штурвалов быстроразъемного концевого затвора, шт | 1 |
Чертеж фильтра ФГГ-200
Чертеж блочного фильтра ФГГ-200
Расшифровка условного обозначения
Например, фильтр грязеуловитель горизонтальный ФГГ номинальным диаметром DN 200 на номинальное давление PN 1,6 МПа, блочного исполнения, с осевым отводом нефти или нефтепродуктов, с правым расположением патрубка подвода нефти или нефтепродуктов, в сейсмостойком исполнении С по MSK — 64 [10], без теплоизоляции, вид климатического исполнения УХЛ1 по ГОСТ 15150 будет обозначаться следующим образом: ФГГ-200-1,6-Б-0-П-С-УХЛ1.
Преимущества ООО "УЗСК"
- Изготовление под заказ с возможностью увеличения осадочной камеры для сред с высокой загрязненностью.
- Испытание каждого фильтра на герметичность под давлением.
- Доставка в Прокопьевске и другие регионы РФ, СНГ и ЕАЭС.
Заполните форму заказа






